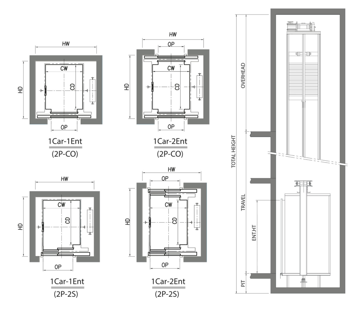
Là dòng thang kính nhập khẩu đồng bộ 100%, sử dụng công nghệ cáp kéo. Tuỳ chỉnh kích thước theo diện tích thực công trình. Tuỳ chỉnh thiết kế theo thẩm mỹ gia chủ.
Nhập khẩu đồng bộ
Nhập khẩu đồng bộ, được sản xuất bởi một nhà máy duy nhất và được thẩm định bởi Getis LLC. Độ hoàn thiện 100% về chất lượng, trải nghiệm và thẩm mỹ.
2 dạng cáp kéo: Cáp dẹt Đức & Cáp tròn
Cáp dẹt Đức bền hơn, tuổi thọ dây cáp cao gấp 2 – 3 lần so với cáp tròn. Vận hành êm ái, tiết kiệm điện.
Full mặt kính Panorama
Tầm nhìn 360. Hiệu ứng mở rộng không gian, nâng tầm trải nghiệm di chuyển.
Đa dạng thiết kế
Đa dạng thiết kế với hơn 100+ tuỳ chọn trang trí. Tuỳ chỉnh thiết kế theo thẩm mỹ cá nhân.
Tối ưu chi phí & thời gian hoàn thiện
Quy trình vận hành khép kín, đem đến chi phí tốt nhất. Từ ngày ký hợp đồng, thời gian hoàn thiện, bàn giao chỉ trong 04 tháng.
Đo ni đóng giày
Tùy chỉnh kích thước theo diện tích thực công trình.
tùy chọn thiết kếXem toàn bộ thiết kế
THIẾT KẾ CABIN
Home Deluxe-
MR 01
Home Deluxe-
MR 02
Home Luxury
04 _ Ti Gold
Home Luxury
06 _ Wood
Home Modern-
HL 01
Home Modern-
HL 02
TRẦN
H C01
H C02
H C03
H C04
H C05
H C06
TAY VỊN
HR01
HR02
HR03 _ Walnut
HR03 – Curved flat bar
SÀN
LGP-FP17
LGP-FP18
LGP-FP20
LGP-FP21
LGP-FP22
LGP-FP32
ETCHING PATTERN
Glass Door
LG-ET054
LG-ET062
bảng điều khiển
VHD5 (STS)
VHD6 (Black Acrylic)
VHD7 (White Pearl Acrylic)
VHD5 (STS)
VHD6 (Black Acrylic)
